Central de atendimento

Regulamento de Obras

REGULAMENTO DE OBRAS NAS ÁREAS RESIDENCIAIS DO CLUBE DE CAMPO VALINHOS

CAPÍTULO I

INTRODUÇÃO

Artigo 1º – Fica instituído o presente Regulamento de Obras, para ordenar e disciplinar o desenvolvimento de forma integrada e harmônica das construções em área residencial do Clube, propiciando o bem estar social da comunidade.

Artigo 2º – Este Regulamento estabelece normas disciplinadoras para projetar e construir edificações, que devem destinar-se a fins exclusivamente residenciais, considerando os aspectos estruturais, estéticos e sanitários, e, respeitadas, também, as seguintes particularidades e exigências:

  • A) Toda e qualquer obra a ser realizada em área residencial do Clube de Campo Valinhos deverá ser precedida do necessário Projeto Arquitetônico, firmado por Engenheiro Civil com registro regular no Conselho Regional de Engenharia e Agronomia – CREA e ou Arquiteto com registro regular no Conselho de Arquitetura e Urbanismo – CAU conjuntamente com Sócio Proprietário. A construção somente poderá ser iniciada após a aprovação do Projeto pela Comissão de Obras da Associação.
    • A/1) Caso a construção ou reforma com acréscimo de área seja iniciada antes da aprovação do Projeto respectivo pela Comissão de Obras, o Sócio Proprietário estará sujeito às penalidades previstas no artigo 15°.
    • A/2) No caso de qualquer reforma que não resulte em aumento de área, não é necessária a aprovação de Projeto pela Comissão de Obras do CCV, mas é obrigatório o preenchimento, pelo Sócio Proprietário, de Formulário próprio disponível na secretaria, mencionando de maneira genérica o objetivo da reforma e os materiais que serão utilizados na obra. Sem o preenchimento dessa exigência a entrada do material será considerada irregular.
  • B) Para submissão do projeto para aprovação pela Comissão de Obras, seja para reforma com aumento de área ou construção nova, será cobrada, pela Associação, o valor equivalente a uma taxa de manutenção.
    • B/1) Entende-se por aumento de área, toda a construção que apresente coberturas (telhados) impermeáveis.
    • B/2) Quando o aumento de área for igual ou inferior a 15 m² não será cobrado o valor acima, ficando, contudo, obrigatória a apresentação do correspondente projeto com o devido recolhimento da ART/RRT.
  • C) A área da edificação principal, no caso de pavimento único, nunca poderá ser inferior a 100 m² (cem metros quadrados). Em construção de dois pavimentos, o inferior deverá ter também no mínimo 100 m² (cem metros quadrados). A área da garagem é considerada a parte. Entende-se por edificação principal a residência que será utilizada pelo Sócio Proprietário da obra.
    • C/1) A taxa de ocupação (TO) fica limitada ao máximo de 60% (sessenta por cento) da área total do lote respectivo.
    • C/2) A área permeável (AP) deverá ser de no mínimo 30% da área do lote. No Clube de Campo Valinhos é exigido que os 30% de AP seja de área verde.
    • C/3) O coeficiente de aproveitamento (CA) é um número que, multiplicado pela área do lote (m²), indica o total de metros quadrados passíveis de serem construídos, somadas as áreas de todos os pavimentos e edificações. No CCV o CA é igual a 1.
  • D) Será permitida a construção de apenas uma edícula na linha de divisa, limitando-se a 20% (vinte por cento) da extensão da linha de uma das laterais e/ou 50% (cinquenta por cento) da linha de fundos. É obrigatório o revestimento externo das paredes lindeiras com reboco e pintura. A cor da pintura deverá ser definida de comum acordo com o(s) proprietário(s) do(s) lote(s) lindeiro(s). Em caso de edículas com recuos menores que 1,50m, em relação às laterais, ou 2,00m, em relação ao fundo, também serão consideradas, para todos os efeitos deste Regulamento, como se fossem na divisa.
    • D/1) Para os efeitos deste Regulamento, edícula é toda e qualquer construção de um único pavimento, que não faça parte do corpo principal da residência, excetuando-se: piscina, quadras esportivas e torre d’água.
    • D/2) A Edícula deverá ser separada da construção principal, em qualquer ponto, pela distância mínima de 2 (dois) metros.
    • D/3) A área da Edícula ou a soma das áreas de mais de uma edícula nunca poderá ser maior do que 50% da área da construção principal.

Artigo 3º – Toda e qualquer nova edificação ou reforma com aumento de área, deverá ser obrigatoriamente construída em absoluta conformidade com este Regulamento de Obras e com a devida aprovação do Projeto pela Comissão de Obras da Associação.

Artigo 4º – A responsabilidade pela construção é de competência exclusiva do Sócio Proprietário, devendo indicar, quando da apresentação do Projeto para aprovação, os dados do profissional ou profissionais habilitados devidamente credenciados no CREA e/ou CAU, que ficará(ão) responsável(is) pela execução do Projeto e da obra, tendo também a obrigação de apresentar a correspondente Anotação de Responsabilidade Técnica (ART)/Registro de Responsabilidade técnica (RRT) no caso de Arquitetos.

Artigo 5º – A placa de identificação da obra contendo os dados do Arquiteto e/ou do Engenheiro responsável pela obra, deverá ser, obrigatoriamente, afixada no lote respectivo a partir do início da obra, após aprovação do Projeto pela Comissão de Obras e deverá ser retirada do local tão logo após a conclusão da edificação.

Parágrafo Único: Excetuada a placa de identificação definida no “caput” deste artigo, não é permitida a colocação de placas de propaganda de qualquer espécie ou placas de oferta de bens e/ou serviços em área compreendida pelo Clube de Campo Valinhos, ressalvada a de alienação do próprio Título, afixada no lote a ele vinculado.

Artigo 6º – Antes do início de qualquer edificação ou reforma, o Sócio Proprietário deverá apresentar carta ao Serviço de Segurança, com cópia para a Administração, responsabilizando-se pelos profissionais que trabalharão em sua obra. O Serviço de Segurança informará a relação de documentos necessários para o cadastramento dos referidos Prestadores de Serviço. Cumprida as formalidades a Segurança fornecerá os respectivos crachás.

Parágrafo Único: O Sócio Proprietário fica ciente de que os profissionais a serem contratados para a execução da obra, não poderão permanecer em regime de alojamento, devendo cumprir o horário de trabalho estabelecido pela Comissão de Obras, que é de segunda a sexta-feira das 8:00 às 17:00 horas e aos sábados das 9:00 às 14:00 horas, sendo que aos sábados não poderão gerar ruídos que provoquem desconforto aos Sócios. Fica também estabelecida a proibição, durante a execução da obra, por seus trabalhadores, da utilização de aparelhos que emitam sons de música, show de rádio, palestras ou similares.

CAPÍTULO II

DO PROJETO DE EDIFICAÇÕES E DA LICENÇA PARA EDIFICAR

Seção I

Do Projeto de Edificações

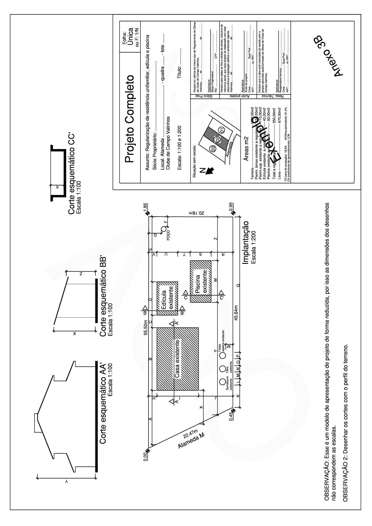
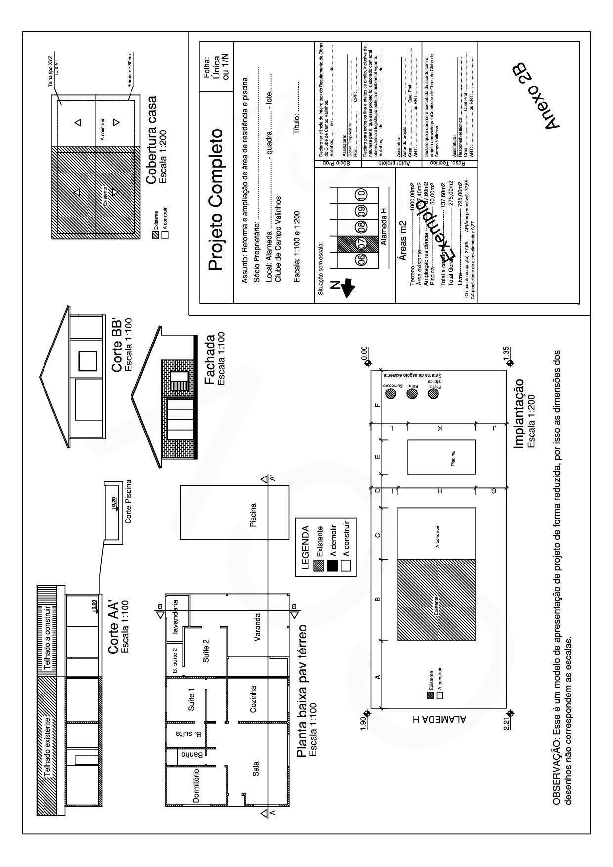
Artigo 7º – O Projeto de Edificações completo, em 3 (três) vias, contendo os elementos necessários para sua perfeita compreensão e aprovação, deverá compreender:

  • 1) Projeto Arquitetônico elaborado e assinado por profissional habilitado conjuntamente com o Sócio Proprietário da obra;
  • 2) Apresentação do Projeto (planta e cortes) da fossa séptica, filtro e sumidouro bem como indicação no desenho de implantação a exata localização desses elementos no terreno. (como sugestão, ver anexos 4A e 4B). É obrigatória também a apresentação das planilhas dos cálculos que determinaram o dimensionamento daqueles componentes. Tudo dentro das imposições, restrições e condições das normas brasileiras NBR 7229/93 e NBR 13969/97. Opcionalmente, poderão ser usados fossa séptica e filtro disponíveis no mercado bem como “biodigestor” de fabricantes reconhecidamente idôneos.
  • 3) Memorial Descritivo em 03 (três) vias.
  • 4) ART (Anotação de Responsabilidade Técnica) ou RRT (Registro de Responsabilidade Técnica) e comprovante de recolhimento da respectiva taxa, tanto do Engenheiro Civil ou Arquiteto autor do projeto, como do Engenheiro Civil ou Arquiteto responsável técnico pela construção.

Artigo 8º – Do Projeto Arquitetônico deverão constar, obrigatoriamente, em pranchas de tamanho padrão ABNT e com carimbo no tamanho A4:

  • A) Planta de locação das edificações no terreno, (implantação) na escala 1:200 ou 1:100, com as curvas de nível, ou pelo menos, as cotas de nível nos vértices do lote.
  • B) Planta do pavimento ou dos pavimentos, na escala de 1:100; com cotas de nível em seus patamares.
  • C) Fachadas, na escala de 1:100.
  • D) Cortes Transversal e Longitudinal na escala 1:100 mostrando o perfil natural do terreno.

Nota: Verificar anexos 1A, 1B, 2A, 2B, 3A e 3B

Seção II

Da Apresentação do Projeto de Edificações e Aprovação do Projeto de Edificações

Artigo 9º – Para atender as exigências deste Regulamento, será obrigatória:

  • A) Solicitação de aprovação do Projeto, feita por meio de requerimento do Sócio Proprietário à Diretoria, que a encaminhará à Comissão de Obras para aprovação;
  • B) Aprovação do Projeto de Edificações no prazo máximo de 30 (trinta) dias, a partir do recebimento do mesmo pela Comissão de Obras;
  • C) As obras deverão ser iniciadas até 2 anos da aprovação do Projeto. Se as obras não forem iniciadas dentro deste prazo, a aprovação perderá sua validade, devendo o Projeto ser submetido novamente à análise e aprovação de acordo com as normas vigentes na ocasião;
    • C/1) Os Projetos aprovados antes do Regulamento de 01 de maio de 2011, onde não constava a restrição de validade por 2 anos, deverão necessariamente ser submetidos à reanálise para a aprovação conforme Regulamento vigente.

Artigo 10 – Aprovado o Projeto de Edificações pela Comissão de Obras, a administração entregará duas cópias firmadas pelo Presidente da referida Comissão ao requerente, com o carimbo “aprovado”, ficando arquivada a outra via do Projeto, em pasta do Título respectivo.

Parágrafo Primeiro: A obra só poderá ser iniciada depois de aprovado o Projeto de Edificações pela Comissão de Obras. Caso contrário será embargada até o atendimento das exigências deste Regulamento.

Parágrafo Segundo: Deverá ficar à disposição para consultas e fiscalização, junto à obra, uma via do Projeto e do Memorial Descritivo aprovados.

Parágrafo Terceiro: O Sócio Proprietário deverá instalar, antes do início das obras, para uso dos profissionais da construção, o sistema definitivo de destino do esgoto sanitário, conforme NBR 7229/93 e NBR 13969/97 além de W. C., ou disponibilizar banheiros químicos para a mesma finalidade, até que seja finalizado o Sistema de Esgoto Sanitário.

Parágrafo Quarto: O Sócio Proprietário ou o Responsável Técnico pela obra deverá enviar carta à Comissão de Obras informando o término da obra, para fins de ser realizada vistoria de constatação de adequação da construção com o Projeto aprovado.

CAPÍTULO III

DAS EDIFICAÇÕES NOS LOTES

Seção I

Artigo 11 – Para conformar a estrutura do Clube, de modo paisagisticamente harmônico e funcional, as edificações, piscina, quadras esportivas, campo de futebol e calçada deverão ter, obrigatoriamente, os seguintes recuos mínimos em relação às divisas do lote:

  • I- 1,50m (um metro e cinquenta centímetros) para as divisas laterais. A largura do Beiral do telhado quando existente, deverá ser no máximo de 1 m (um metro). Os beirais, projeções e balanços que ultrapassarem a largura de 1 m, deverão ser apresentados e computados como área construída da edificação, desde que esses não sejam voltados para as divisas laterais com recuo de 1,50m;
  • II- 2,00m (dois metros) para a divisa do fundo;
  • III- 5,00m (cinco metros) para o recuo frontal, medido a partir do alinhamento da testada;

Parágrafo Primeiro: A edícula poderá ser construída em uma das divisas laterais e/ou no fundo do terreno, com as ressalvas previstas nas letras “D”, “D/1” e “D/2” do artigo 2º supra. Porém, nos lotes de esquina não poderão ser edificadas nas linhas que confrontam o terreno com as Alamedas.

Parágrafo Segundo: Devem ainda ser observadas as seguintes condições:

  • A) Em qualquer circunstância, a altura da edícula na divisa, não poderá ultrapassar a medida de 4,50m (quatro metros e cinquenta centímetros) medidos ao longo do perfil natural do terreno;
  • B) As águas pluviais dos telhados deverão ser obrigatoriamente canalizadas de forma a evitar que escoem para os lotes vizinhos;
  • C) Nenhuma construção poderá ter mais de dois pavimentos, isto é, térreo e superior acima do nível da rua;
  • D) Nenhuma construção edificada sobre a linha de divisa, poderá ter qualquer abertura ou visor voltado para lote vizinho;
  • E) Toda e qualquer obra realizada posteriormente à construção da casa deverá ter a aprovação da Comissão de Obras;
  • F) Em face das peculiaridades do terreno, a Comissão de Obras poderá fazer concessões e/ou exigências não previstas neste parágrafo, visando atender as particularidades de cada caso; nessa hipótese, as decisões deverão ser tomadas por maioria absoluta dos membros componentes da Comissão, de forma fundamentada, lavrando-se ata circunstanciada, que passará a fazer parte integrante do processo;
  • G) O canteiro de obras deverá obrigatoriamente ser dentro do terreno do Sócio Proprietário; não sendo permitido o uso das ruas e calçadas para colocação de material da obra e seu manuseio, sob pena de multa pecuniária em valor a ser fixado pela Diretoria Executiva e da obrigação de retirada imediata do material depositado no local;
  • H) Quanto aos entulhos de material remanescente da obra, deverão ser acondicionados em caçambas apropriadas.
    • H/1) Toda e qualquer construção deverá ser limpa diariamente, recolhendo e separando materiais orgânicos sendo devidamente acondicionados para recolhimento nos dias pré-determinados;
  • I) As caçambas deverão trazer o nome e telefone visíveis das empresas responsáveis, bem como serem sinalizadas por faixas refletivas em todo seu perímetro externo;
  • J) As obras inacabadas e/ou abandonadas deverão manter seu lote devidamente limpo e nas edificações que dão acesso como portas e janelas, estas deverão ser fechadas com tapume (madeirite) impedindo assim a entrada de pessoas;
  • K) Os pontos de iluminação externa como de jardins, quadras esportivas e postes, devem ser convenientemente locados e dimensionados de maneira a não criar incômodo aos vizinhos;
  • L) A torre d’água quando construída de forma individualizada, seja por superposição de anéis de concreto, coluna de aço ou outro tipo de construção, deverá respeitar a distância mínima de 1,50 m nas divisas laterais, 5 m da frontal e 2 m da linha de divisa do fundo, independentemente de sua altura. Deverá sempre receber acabamento pelo menos de pintura em cor neutra.